Bouwproject
Architectuurwedstrijd
Conceptueel/functionaliteit
Duurzaamheid
Integratie in de omgeving
Masterplan
Integratie kunstwerk

Nieuw woondorp brengt huiselijkheid en een nieuw gezicht

Ondergebracht in een oud klooster, schoolgebouw en uitgeleefde prefab gebouwen, was het hoog tijd om de leefgroepen en de administratie van Ter Muren, nu Ruyskensveld Campus Erembodegem, een nieuw elan te geven. Centraal in het masterplan staat de creatie van drie zorgentiteiten. Met een slimme inplanting en focus op een zo huiselijk mogelijk omgeving, kreeg de nieuwe site vorm.

Ruyskensveld
Ruyskensveld
Ruyskensveld
Ruyskensveld
Initiatiefnemer
Ruyskensveld vzw
Voorziening
Kostprijs
1.930,00 euro/m2
Jaartal ingebruikname
2020

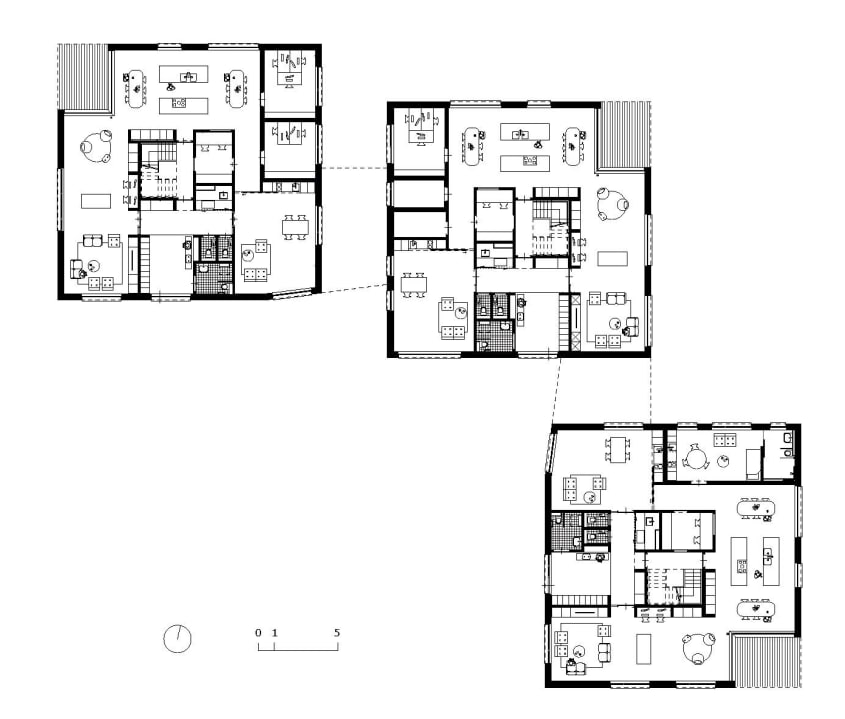
Een masterplan voor een nieuw zorgconcept

Het ruimtelijk scheiden van de verblijfsleefgroepen van de andere diensten zoals crisisopvang en de projectendienst, was één van de basisideeën voor het masterplan. Twee van die zorgentiteiten bestaan uit telkens twee verticale leefgroepen en één horizontale. De derde zorgentiteit bevat de studio’s voor zelfstandig wonen, een nieuwe crisisgroep, de projectendienst en recent een veilig verblijf voor 6 meisjes.

Het ontbrak Ter Muren aan een duidelijk gezicht naar de buitenwereld. De oude loods met grote poort is nu omgevormd tot hoofdtoegang, gezicht en hart van de organisatie. Door hier het dak weg te halen en maar voor de helft terug te plaatsen, krijgt men een gedeeltelijk overdekte buitenruimte, een perfecte speelplek voor de kinderen of plaats voor allerlei activiteiten. De administratie sluit aan op deze halfopen loods, waardoor bezoekers er snel een aanspreekpunt kunnen vinden.

Inplanting zorgt voor verschillende sferen

Een eerste zorgentiteit met leefgroepen ligt aan de straatkant, terwijl een tweede entiteit in het binnengebied gebouwd is. Hierdoor ontstaan er verschillende zones in de buitenruimte, van rustige privétuinen voor de leefgroepen tot groene speelzones waarvan ook de  naburige basisschool gebruik maakt. De boomgaard, het zicht op het water, het beperken van de inkijk vanuit het jaagpad aan de overkant van de rivier, de verplaatsing van de dierenweide… zijn allemaal zaken die het masterplan in rekening bracht. De zorgentiteit met o.a. de crisisopvang en de studio’s blijft in de bestaande gebouwen. Voor veilig verblijf werd er recent een oude leefgroep in de zelfde sfeer verbouwd.

Huiselijk, veel licht en veel ruimte

Iedere leefgroep is opgevat als een gewone woning met leefruimtes op het gelijkvloers en slaapkamers op de verdieping. Ook de vormgeving van de daken straalt samen wonen onder één dak uit. Op de verdieping zijn de leefgroepen verbonden, handig voor de slapende waak. Kantoren voor contextwerkers zijn ondergebracht bij de leefgroepen, maar zijn niet toegankelijk vanuit de leefgroep, enkel via een buitendeur.

De zorgvoorziening bouwt een flexibel concept:

  • alle leefgroepen zijn gelijkaardig opgebouwd (horizontaal en verticaal)
  • de kamers voor kleuters, kinderen en adolescenten zijn hetzelfde
  • de studio's op het gelijkvloers, bedoeld voor adolescenten om zelfstandig te leren wonen, zijn ingericht met een rolstoeltoegankelijk sanitair
  • zo weinig mogelijk binnenwanden zijn dragend, enkel de vaste kern en buitenwanden
Door intelligent ruimtegebruik willen we zoveel mogelijk ruimte geven aan de kinderen.

OSAR

Architect

Het gelijkvloers is opgevat als een open plan met vaste kern met voldoende aparte ruimten, waardoor toezicht en geborgenheid hand in hand gaan. Een kastenwand in plaats van een aparte berging is ruimtebesparend. Een kitchenette in de bezoekersruimte stimuleert ouders om samen met hun kind alledaagse dingen te doen zoals koken.

Iedere leefgroep heeft een eigen trap om naar de slaapverdieping te gaan. De kamers zijn 12 m² en hebben naast een bed, een bureau en kasten ook nog wat speelruimte. De nachthal is niet zomaar een gang, maar een brede ruimte met in het midden een kern van sanitaire ruimtes, een trap en linnenkasten. Ramen brengen veel licht en op de uiteindes zijn er kleine zithoekjes. Met behulp van schuifwanden kan de nachthal opgesplitst worden tussen jongens en meisjes.

Ook met de materiaalkeuze willen de architecten de huiselijke sfeer realiseren, met terracotta tegels met vloerverwarming op het gelijkvloers en het huiselijk aanvoelende linoleum op de vloeren boven. De kleuren en materialen op de kamers zijn neutraal gehouden, zodat elk kind zijn kamer kan personaliseren.

Huiselijkheid staat centraal in dit project en dit uit zich in de conceptkeuzes, de inrichting van de leefgroepen en de materiaalkeuze.

OSAR

Architect

Technieken met oog op de toekomst

Er is in dit project sterk ingezet op isolatie en duurzame technieken, ook met oog op de toekomst. Waar er nu gebruik gemaakt wordt van 2 (kleine) gasketels, zijn er mogelijkheden voorzien om helemaal hernieuwbaar te gaan. Zo is er ruimte voor een warmtepomp al dan niet met geothermie, liggen er leidingen voor laadpalen en zijn er wachtbuizen voor bijkomende PV panelen.


Verder werden er ook in samenwerking met ingenieursbureaus nieuwe zorgtechnieken ontwikkeld, waaronder een nieuw systeem van deuralarmen.

Technieken
  • Lucht/water warmtepomp voor productie van sanitair warm water (SWW)
  • PV-installatie
  • Regenwaterrecuperatie
  • Systeem D met warmtewiel
  • Vloerverwarming en radiatoren
  • Geen actieve koeling, wel nachtkoeling via luchtgroep

Bouwheerschap

De masterplanoefening was intensief, maar wierp zijn vruchten af. De inplanting van de verschillende functies en de verwevenheid met de omgeving werden uitvoerig bestudeerd en doorgesproken. De ingebruikname is moeizaam verlopen wegens een wijziging aan het brandweeradvies. Dit zorgde voor vertraging en meerkosten.

Tips van de bouwheer
  • Stel een bouwteam samen en vul eventueel aan met een externe expert
  • Stel specifieke werkgroepen samen voor de opvolging van het bouwproject
  • Bevraag de bewoners/gebruikers regelmatig, dit is een grote meerwaarde
  • Nodig buurtbewoners uit en informeer hen over de werken
  • Bespaar niet op energiezuinige maatregelen zoals isolatie
  • Betrek de lokale brandweer regelmatig bij het ontwerp
  • Voorzie voldoende berging
  • Heb voldoende aandacht voor akoestiek, daar hebben we nog aanpassingen aan moeten doen 

Kunstwerk

Glaskunstenaar Wouter Bolangier maakte, in samenwerking met de lokale kunstsmeden Peter en Koen Debruyn en na workshops met kinderen en jongeren, een nieuwe toegangspoort voor de gerenoveerde hangar met als functie een halfopen speelplek, een ontmoetingsplek of een feestplek. Dit geeft mee een nieuw gezicht aan de site van Ruyskensveld.  

Kunstwerk Wouter Bolangier
Kunstwerk - © Wouter Bolangier