Bouwproject
Conceptueel/functionaliteit
Integratie in de omgeving
Healing environment
Integratie kunstwerk

Geborgen patiowoningen voor kinderen en jongeren midden in de stad

Nieuwbouw PZ H. Familie voor kinder- en jeugdpsychiatrie
Nieuwbouw PZ H. Familie voor kinder- en jeugdpsychiatrie
Doorgang naar het park
Zicht vanuit het park
Initiatiefnemer
Groep Zorg H. Familie vzw
Voorziening
Kostprijs
1.635,00 euro/m2
Jaartal ingebruikname
2022

De nieuwbouw voor het kinder- en jeugdpsychiatrisch ziekenhuis biedt plaats aan 52 kinderen en jongeren en omvat 5 behandeleenheden die elk hun eigen naam kregen: een forensische afdeling (De Patio), een crisisafdeling voor adolescenten (K-jotter) en behandeleenheden voor respectievelijk peuters en kleuters (K-dee), de lagere schoolleeftijd (K-star) en de middelbare schoolleeftijd (K-det). Naast de mogelijkheid tot ziekenhuisopname kunnen kinderen en jongeren ook op dagtherapie komen in De Korbeel. Samen met het aanpalende Psychiatrisch Ziekenhuis H. Familie, opgericht in 1950, vormt de nieuwbouw een centraal gelegen campus met een gespecialiseerd aanbod voor zowel kinderen, jongeren als volwassenen met een psychische kwetsbaarheid. 

Achtergrond van het project

De Korbeel werd in 1974 als eerste kinder- en jeugdpsychiatrisch ziekenhuis erkend in Vlaanderen en is sindsdien een gevestigde waarde binnen de geestelijke gezondheidszorg. In 2007 volgde, als enige in West-Vlaanderen, de oprichting van een forensische jeugdpsychiatrische eenheid De Patio. In associatie met AZ Groeninge Kortrijk en O.L.V. van Lourdes Ziekenhuis Waregem werden ook 12 extra plaatsen voor dagbehandeling gecreëerd. Olivier Peene, algemeen directeur zegt hierover: “Door de uitbreiding van ons behandelaanbod overheen de jaren was een ruimere infrastructuur de enige optie. Het kunnen verwerven van de vroegere site van campus Groeninge van het Guldensporencollege (het voormalige Sint-Jozefsinstituut) was dan ook een unieke opportuniteit om een nieuwbouw te realiseren in hartje Kortrijk.”

Keuze voor een ziekenhuis in de stad

De nieuwbouw staat midden in het stedelijk weefsel van de stad en gaat er een doordachte relatie mee aan. Geen sinecure, de doelgroep is immers kwetsbaar en heeft nood aan privacy. Toch is het project mooi geïntegreerd in de omgeving via aansluiting van de semi-publieke buitenruimten en een zachte doorgang doorheen de site vanuit het winkel-wandelcentrum richting het Groeningepark.

Door afwisselende hoogtes van de gebouwen en de muren van de patiotuinen ontstaat een levendig geheel. De doorgang en de tuinen erlangs versterken het groene karakter van het project in de stad. Zo past het kinderpsychiatrisch ziekenhuis zich niet alleen visueel en functioneel in in haar omgeving maar geeft het ook iets terug aan de stad.

Het is een bouwwerk in functie van de gebruiker, maar ook ten gunste van de omgeving.

Bert Scheirlynck

architect

Patiowoningen voor een healing environment

Conceptueel is sterk ingezet een healing environment. Zo zijn de leefgroepwoningen kleinschalig en hebben ze elk een eigen patiotuin, ingericht op maat van de doelgroep. Dit zorgt voor veel verbinding tussen de kamers, leefruimten en de buitenruimte. De patiowoningen met muren naar de buitenwereld, zijn zo een wereld op zich waar kinderen of jongeren zich geborgen kunnen voelen. 

De patiotuin per leefgroep laat kinderen en jongeren toe om in geval van toenemende spanning of bij dreigende escalatie tot rust te komen.

Mieke Demeestere

directeur patiëntenzorg

Patiotuin bij leefgroep peuter en kleuters (K-dee)
Patiotuin bij leefgroep peuter en kleuters (K-dee) - © Klaas Verdru

Een ruime en lichte binnenstraat verbindt alle woningen, fungeert als zorgstraat voor medewerkers en als speelstraat voor de kinderen. Terwijl het dagelijks leven zich volledig op het gelijkvloers afspeelt, leidt een open trap naar de 1ste verdieping met therapie- en onderwijslokalen en de sporthal. Door deze overkoepelende functies apart te bundelen, kunnen ze los van de woningen gebruikt worden.

Met de materiaalkeuze is er sterk ingezet op huiselijkheid, in combinatie met stevigheid en agressiebestendigheid. Zo zijn de gangen in geschilderde baksteen i.p.v. pleisterwerk omwille van robuustheid, wat als bijkomend voordeel ook nog een kostenbesparing bleek.

Een goede akoestiek draagt ook bij tot een healing environment, zeker voor een prikkelgevoelige doelgroep. De plafonds zijn uitgevoerd in houtwolcementplaten en ook in de sporthal is er extra ingezet op akoestisch comfort. 

Kamers op maat en veel aandacht voor inrichting

De inrichting van de kamer is een totaalconcept ontworpen op maat van de leeftijd en doelgroep: een geborgen alkoofachtig bed voor de jongsten, een apart bed voor de oudere kinderen. Het sanitair, de kasten, de studiehoek zijn allemaal in één geheel ontworpen. De houten wanden zorgen voor een erg huiselijk en warm aanvoelen in deze ruimtes.

Ook de signalisatie houdt rekening met de doelgroepen. Met tekeningen op de beglaasde wanden wordt er voor kleuters met een andere symboliek gewerkt als voor de jongeren. K-dee, K-star, K-det en K-jotter, de typische West-Vlaamse namen van de woningen zijn leeftijdsgebonden waarbij de “K” verwijst naar zowel K-dienst als naar Kortrijk. De pictogrammen houden ook rekening met genderidenteit. Elke kamer is ook voorzien van een bordje waarbij het kind/de jongere een eigen tekening kan maken om zijn/haar kamer te personaliseren.

Kamer 1
© Klaas Verdru

Kamer in de forensisch jeugdpsychiatrische afdeling (De Patio) voor jongens van 12 tot 18 jaar.

Kamer kleuters en peuters
© Klaas Verdru

Kamer voor peuters en kleuters

Opschaling zorg van comfortroom, time out tot afzonderingskamer

In elke leefgroep is een comfortroom voorzien waar kinderen/jongeren ongedwongen tot rust kunnen komen om zo vrijheidsbeperkende maatregelen maximaal te beperken.  Afhankelijk van de leeftijdscategorie is deze ruimte ingericht met aangepast meubilair (prikkelarm, zacht) om geborgenheid te geven. Er is ook een kleine bergruimte voor dit los meubilair zodat de inrichting kan aangepast worden aan de vraag van de jongere.

Plan en beeld comfortroom
Plan en beeld comfortroom

Voor 2 behandelafdelingen (De Korbeel en de Patio) is er ook een ruime afzonderingsunit voorzien, zo gepositioneerd om de interferentie met de leefgroepswerking tot een minimum te herleiden. In deze units zijn opgebouwd met twee kamers (een time-out en een afzonderingskamer) met een eigen sas en sanitair met toilet en douche. Er is een tussenruimte waar een medewerker of een familielid kan verblijven in het kader van nabijheid, met een afsluitbaar raam voor contact.

Deze ruimtes zijn uitgevoerd van keramische tegels en een pvc wandbekleding om huiselijkheid te behouden. Vanuit beide ruimten is er zicht op groen op een patio, vanuit de time-out ruimte kan het raam naar de patio geopend worden via de toegangscontrole op afstand. Beide patio’s zijn ook bereikbaar vanuit de tussenruimte.

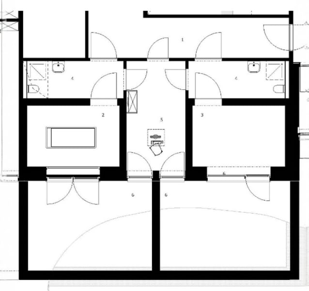
Plan afzonderingsunit
Plan: Afzonderingsunit met time out en afzonderingskamer met centrale tussenruimte, bijhorend sanitair en patio’s

Legende

  1. Sas afzondering
  2. Afzonderingskamer
  3. Time out ruimte
  4. Sanitaire ruimte
  5. Tussenruimte voor centraal toezicht
  6. Buitenruimten

Domotica

Een doorgedreven toegangscontrolesysteem laat toe dat elk lokaal via badge geopend en gesloten kan worden, met aandacht voor de privacy van de kinderen en jongeren. Elke kamerdeur heeft een detectiesysteem dat melding maakt bij het openen van een kamerdeur tijdens ingestelde tijdstippen (bv. ’s nachts). In de crisisafdeling en de forensische afdeling zijn de kamers voorzien van een extra sluitsysteem dat alle deuren sluit als 1 kamerdeur geopend wordt buiten de vastgelegde uren. Dit om de veiligheid van medewerkers en jongeren ’s nachts te waarborgen.

Daarnaast hebben de kamers een zonwering gekoppeld aan het gebouwbeheersysteem, die per gevel volgens de inval van de zon automatisch gestuurd wordt en overrulebaar is vanuit de verpleegpost. Elke kamer heeft ook een eigen verduisteringscreen dat zowel lokaal als vanop afstand kan bediend worden. Dit is bijvoorbeeld belangrijk om de allerkleinsten tijdig te kunnen laten slapen. Indien nodig kunnen de medewerkers de screens vanop afstand sluiten om het contact tussen een jongere in de kamer en jongeren in de patiotuin te verbreken bij problematische situaties.

Tot slot is het gebouw voorzien van een locatiedetectiesysteem dat exact kan weergeven waar een agressieoproep plaatsvindt om efficiënt assistentie te kunnen verlenen aan collega’s in een crisissituatie.

Future proof gebouw

Waar initieel nog radiatoren voorzien waren, is er tijdens het ontwerpproces al snel gekozen om over te schakelen naar lage temperatuurverwarming via vloerverwarming. Nu nog met CV-ketels, maar op termijn aanpasbaar voor de installatie van warmtepompen. Een doorgedreven isolatie is gecombineerd met een maximum aan fotovoltaïsche cellen en recuperatie van regenwater voor een goed waterbeheer.

Alle daken op de eerste verdieping zijn uitgevoerd als groendaken: dicht bij de studio’s en therapieruimtes als intensieve daktuinen. Verder uitdeinend in extensieve groendaken met mos, sedum en kiezels in een grillig patroon. Dit zorgt voor een betere temperatuurregeling van het gebouw, biodiversiteit in de stad met de aantrek van bijen op de bloemen en voor een goede waterhuishouding door het langer vasthouden van water.

Technieken
  • PV installatie
  • Regenwaterrecuperatie voor toiletspoeling en water voor de patiotuinen en intensieve daktuinen
  • Ventilatiesysteem D
  • Warmteverdeling via vloerverwarming en op de ventilatielucht in sporthal en afzonderingskamers
  • Gecontroleerde screens en gecontroleerde verduistering per kamer
  • Topkoeling en vloerverwarming die kan gebruikt worden voor vloerkoeling
  • Opengaand geveldeel i.p.v. raam

Ervaring van de bouwheer

Voor een optimale integratie van het project in de stedelijke omgeving kwam de inplanting van de nieuwbouw tot stand in nauw overleg met Stad Kortrijk. Het bouwproces zelf is heel vlot verlopen, dankzij goede afstemming en samenwerking tijdens de ontwerpfase met de vergunnende overheid en de goede samenwerking met het team van architecten en ingenieurs. 

Enkele tips
  • Doe inspiratie op bij collega-voorzieningen die gebouwd hebben
  • Heb aandacht voor het evenwicht tussen huiselijke materialen en agressiebestendigheid
  • Lees het bestek technieken kritisch na vooraleer het aan te besteden
  • Zorg voor een gedetailleerde uitwerking van het bestek m.b.t. toegangscontrole
  • Betrek externe keuringsorganismes vroegtijdig 
opengaand raamdeel
© Klaas Verdru

Opengaand raamdeel in de kamers zorgt voor extra verluchtingsmogelijkheid

Het kunstwerk: sculpturen

Langs de publieke doorsteek tussen de Langemeersstraat en het Groeningepark staan vier monumentale kunstwerken verspreid opgesteld. De sculpturen zijn strak geometrisch opgebouwd in een subtiel evenwicht van vlakken en volumes, en hebben elk een eigen karakter. De ene is gesloten, de ander eerder landschappelijk of verheven. Kunstenaar Henk Delabie: “De kleurrijke architecturale constructies zijn bedoeld als ontmoetingsplekken. Je kan erop zitten, liggen, leunen. Ze nodigen je uit om deel te worden van de sculptuur. Ze prikkelen de voorbijganger door zowel de kleur, vorm en verhoudingen als door het glanzend oppervlak die tactiel aanvoelt.”

kunstwerk de patio